Aalberts IPS Revit plug-in
ontwerp sneller complexe leidingsystemen met tot wel 15.000 producten van Aalberts integrated piping systems
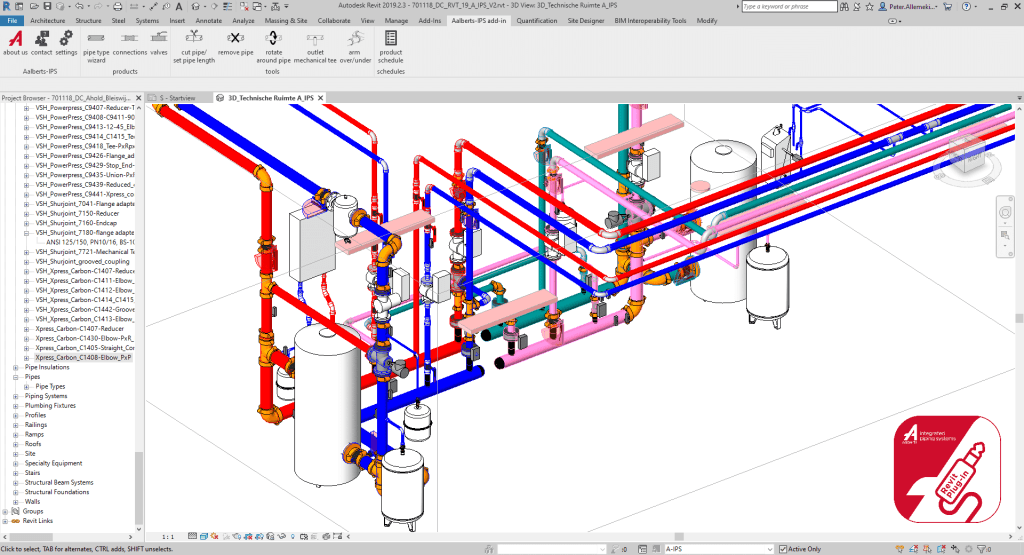
Aalberts integrated piping systems heeft een gratis plugin voor Autodesk Revit ontwikkeld waarmee gebruikers eenvoudig en overzichtelijk Revit families kunnen selecteren en inladen in projecten. Naast een bibliotheekfunctie bevat de plugin een aantal handige tools die het modelleren van leidingsystemen binnen Autodesk Revit vereenvoudigen.
- geschikt voor Autodesk Revit versies vanaf 2019
- gestructureerde data op basis van ETIM-MC standaard en Nederlandse Revit Standards (NLRS)
- geoptimaliseerde pipe types en routing preferences op basis van toepassing, keur en buisstandaard
- selectie en modelleertools welke de workflow vereenvoudigen en productiviteit verhogen
gratis tool voor efficiëntere Revit modellering van leidingen en installaties met Aalberts integrated piping systems producten
Software plugin voor het tekenen van dynamische leidingsystemen in Revit

- gratis Revit add-in met directe toegang tot de complete up to date product catalogus van Aalberts integrated piping systems met tot wel 15.000 producten
- tevens modelleer tools voor vereenvoudiging van workflow en hogere productiviteit
- pipe system wizard met eenvoudige filtermogelijkheden op toepassing, productlijnen, buis materiaal en kwaliteitsnormen


