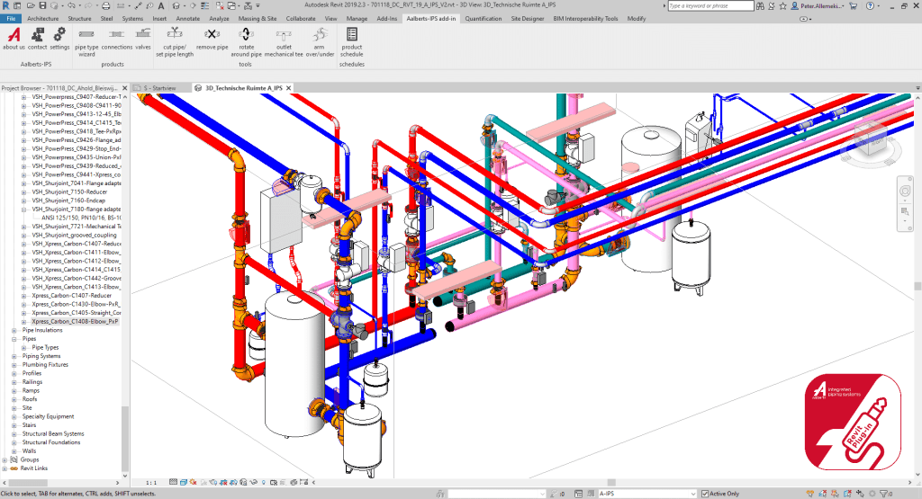
Aalberts IPS Revit plug-in
concevez des systèmes de tuyauterie complexes plus rapidement avec jusqu'à 15 000 produits Aalberts integrated piping systems
Aalberts integrated piping systems a développé un plug-in gratuite pour Autodesk Revit avec lequel les utilisateurs peuvent facilement et clairement sélectionner les familles Revit et les charger dans des projets. En plus d’une fonction de bibliothèque, le plug-in contient un certain nombre d’outils utiles qui simplifient la modélisation des systèmes de tuyauterie dans Autodesk Revit.
- convient aux versions Autodesk Revit à partir de 2019
- données structurées basées sur la norme ETIM-MC
- types de tuyaux optimisés et préférences de routage en fonction de l’application, de l’approbation et de la norme de tuyau
- des outils de sélection et de modélisation qui simplifient le flux de travail et augmentent la productivité
outil intelligent pour une modélisation Revit plus rapide des tuyaux et des installations avec les produits Aalberts integrated piping systems
plugin logiciel pour dessiner des systèmes de tuyauterie dynamiques dans Revit

- complément Revit gratuit avec accès direct au catalogue de produits complet et à jour des Aalberts integrated piping systems avec jusqu’à 15 000 produits
- également des outils de modélisation pour simplifier le flux de travail et augmenter la productivité
- pipe system wizard avec des options de filtrage simples par application, gammes de produits, matériau de tuyauterie et normes de qualité


